Zuiderparklaan 181, Den Haag

Rustenburg en Oostbroek

Interesse in deze woning?

Neem contact op voor het maken van een afspraak. Bel 070-3524201 of mail naar makelaars@devilee.nl

Contact opnemen
type
Woningtype
Tussenverdieping
type
Oppervlakte
59m²
type
Perceel
n.v.t
type
Aantal kamers
3
type
Prijs
€ 215.000 k.k.

Omschrijving

3-kamer (voormalig 4-kamer) 1e verdieping portiekwoning in eenvoudige staat.

Nabij Apeldoornselaan, winkelcentrum Monnickendamplein, het Zuiderpark en openbaar vervoer. De woning komt uit de verhuur en heeft een frisse opknapbeurt nodig. Energielabel D. Afgekochte erfpachtgrond.



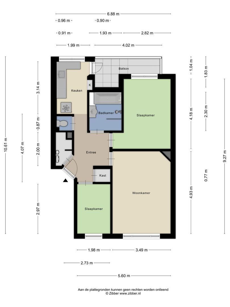
Indeling:
Portiektrap naar 1e verdieping.
Entree
Hal met elektra-, gas- en watermeter
Overloop met apart toilet
Woonkamer
Achter(slaap-)kamer
Voorzij(-slaap) kamer
Eenvoudige keuken in blauw/beuken uitvoering
Tussengelegen badkamer met ligbad, wastafel en wasmachine aansluiting
Balkon met balkonkast

Voor de afmetingen van de diverse ruimtes verwijzen wij u naar de bijgevoegde plattegronden.

Bijzonderheden:
- Gelegen op eeuwigdurend afgekochte erfpachtgrond.
- Energielabel D.
- Houten kozijnen met aan de voorzijde dubbel glas en de achterzijde met enkel glas.
- Gebruiksoppervlakte wonen 59,30 m2
- Warmwater d.m.v. huurgeiser. Verwarming d.m.v. centrale verwarming
- 1/3e aandeel in de gemeenschap van de Vereniging van Eigenaren in oprichting
- Meetcertificaat Zibber aanwezig.
- In koopovereenkomst worden preventief algemene milieu-, materialen- en exoneratieclausules opgenomen.
- Tevens zal worden opgenomen dat de eigenaar de woning niet zelf heeft bewoond (woning komt uit de verhuur).
- Oplevering per direct.

Interesse in dit huis? Schakel direct uw eigen NVM-aankoopmakelaar in.
Uw NVM-aankoopmakelaar komt op voor uw belang en bespaart u tijd, geld en zorgen.

Adressen van collega NVM-aankoopmakelaars in Haaglanden vindt u op Funda.


Deze informatie is door ons met de nodige zorgvuldigheid samengesteld. Onzerzijds wordt echter geen enkele aansprakelijkheid aanvaard voor enige onvolledigheid, onjuistheid of anderszins, dan wel de gevolgen daarvan

Kenmerken

Overdracht

Prijs
€ 215.000 k.k.
Status
Verkocht onder voorbehoud
Oplevering
Per direct
Adres
Zuiderparklaan 181
Postcode
2574 HG
Plaats
Den Haag

Bouw

Soort appartement
Tussenverdieping, Appartement
Woonlaag
2
Soort bouw
Bestaande bouw
Bouwjaar
1926
Onderhoud binnen
Matig
Onderhoud buiten
Redelijk

Oppervlakten en inhoud

Woonoppervlakte
ca. 59m²
Inhoud
ca. 195m³

Indeling

Aantal kamers
3
Aantal slaapkamers
2
Aantal badkamers
1
Aantal verdiepingen
1

Energie

Energielabel
D
Warm water
Gasboiler huur
Verwarming
Gashaard

Buitenruimte

Ligging
Aan drukke weg, In woonwijk
Balkon
Ja

Garage

Locatie

[ { "address": "Zuiderparklaan 181", "zipCode": "2574 HG", "city": "Den Haag", "lat": 52.066327, "lng": 4.2781022, "heading": 0, "pitch": 0 } ]

Interesse?

Heeft u interesse in deze woning? Vul het onderstaande formulier in en wij nemen z.s.m contact met u op.

Uw bericht is naar ons verzonden. Wij nemen zo snel mogelijk contact met u op.

Er is iets mis gegaan met het versturen van het formulier.
Controleer of u alle velden (goed) heeft ingevoerd en probeer het nog een keer.

recaptcha
reCAPTCHA
PrivacyTerms
telefoon

Liever telefonish contact?

U kunt ons van maandag t/m donderdag van 08:30 tot 17:30 en op vrijdag van 08:30 tot 17:00 uur bereiken op

070 - 352 42 01

Volg ons op facebook

facebook