Vlamenburg 20 B, Den Haag

Mariahoeve en Marlot

Interesse in deze woning?

Neem contact op voor het maken van een afspraak. Bel 070-3524201 of mail naar makelaars@devilee.nl

Contact opnemen
type
Woningtype
Bovenwoning
type
Oppervlakte
58m²
type
Perceel
n.v.t
type
Aantal kamers
2
type
Prijs
€ 1.171 p.m. ex.

Omschrijving

Het is niet meer mogelijk een afspraak in te plannen.

Twee-kamer appartement gelegen op de 8e verdieping met een woonkamer met open keuken (voorzien van diverse inbouwapparatuur), ruim balkon, slaapkamer, badkamer en toilet. Energielabel A+

De afgebeelde foto's zijn van een identiek appartement. Afgebeelde laminaatvloeren behoren niet tot het gehuurde. Huurder dient hiervoor zelf zorg te dragen en/of over te nemen van de vorige huurder..

U kan alleen in aanmerking komen voor deze woning als u voldoet aan de huurvoorwaarden zoals hieronder vermeld. Voldoet u niet aan de voorwaarden dan heeft het maken van een afspraak geen zin.

Huurvoorwaarden:
- Deze woning is beschikbaar voor maximaal 2 personen zijnde een stel. Geen samenwonende vrienden, vriendinnen en/of studenten.
- Geen huisdieren toegestaan.
- Huurprijs € 1.098,74 per maand
- Servicekosten € 40,00
- Stookkosten € 32,00
- Totale huur € 1.170,74 exclusief elektriciteit, water en TV-kabel (eigen gebruik, eigen meters).
- Waarborgsom: € 2.197,74 (2x kale huurprijs).
- Huurcontract voor onbepaalde tijd.
- Huurkandidaten dienen een (gezamenlijk) aantoonbaar vast maandelijks inkomen uit arbeid te kunnen overleggen van minimaal € 3.500,- netto.
- Beschikbaar per 1 december 2025
- Bij interesse kunt u ook een parkeerplaats huren in de parkeergarage. De kosten van een parkeerplaats bedragen € 105,- per maand waarvan € 1,00 servicekosten, waarborgsom € 105,-, waarborgsom handzender € 50,00.
- Voor deze woning heeft u een huisvestingsvergunning (middenhuur) nodig. Meer informatie hierover kan u vinden op de website van de gemeente Den Haag.

Voorwaarden gemeente Den Haag voor het verkrijgen van een huisvestingsvergunning voor deze woning:

U bent 18 jaar of ouder.
U heeft de Ne­der­land­se na­ti­o­na­li­teit, een gel­dig pas­poort van de Eu­ro­pe­se Unie (EU), plus Liechtenstein, Noorwegen en IJsland, of een gel­di­ge ver­blijfs­ver­gun­ning.
De woning heeft minimaal 12 vierkante meter gebruiksoppervlakte per persoon.
Gaat u er alleen wonen? Dan is uw belastbaar jaarinkomen maximaal € 67.366 per jaar.
Bestaat uw huishouden uit 2 of meer personen? Dan is het belastbaar jaarinkomen maximaal € 89.821 per jaar.



*LOCATIE*
Haagse Houtzicht is een woningcomplex in de wijk Mariahoeve in Den Haag en bestaat uit 62 huurwoningen, een parkeergarage en een kerk met sociaal centrum.

Het complex ligt in het groen en grenst aan de ene kant aan de sportvelden, terwijl aan de andere kant winkelcentrum Het Kleine Loo ligt. Openbaar vervoer (Tram 6 halte Vlamenburg, Bus 24 halte Margarethaland, NS-station Mariahoeve) , uitvalswegen, de stad, het Haagse Bos en duinen en strand zijn om de hoek.

*INDELING*
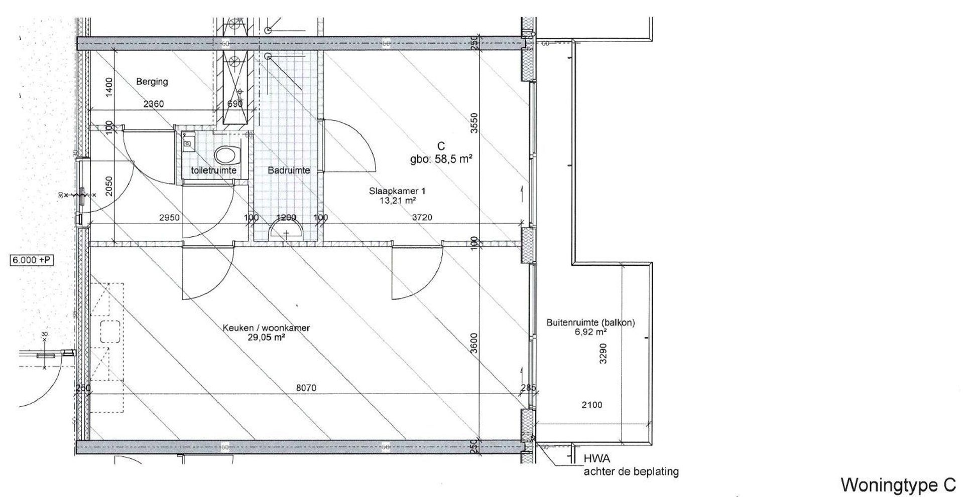
Dit 2-kamerappartement van 58 m2, gelegen op de 4e verdieping, bestaat uit:
Woonkamer met open keuken voorzien van diverse inbouwapparatuur zoals een vaatwasmachine, koel-vries combinatie en combimagnetron.
Ruim balkon op het zuidoosten met vrij uitzicht.
Slaapkamer met toegang tot de badkamer.
Bergruimte met wasmachineaansluiting.

Toilet met fonteintje.
In de kelder van het complex heeft het appartement een 2e berging.

Het appartement heeft geen eigen gasaansluiting, is energiezuinig en duurzaam met een A energielabel. Er is een Warmte Koude Opslag (WKO)-installatie met vloerverwarming en vloerkoeling. Alle kozijnen hebben HR beglazing.

*AFMETINGEN*
Woonkamer met open keuken: ca. 3.60 m x 8.00 m
Slaapkamer: ca. 3.55 m x 3.72 m
Badkamer: ca. 3.55 m x 1.20 m
Toilet: ca. 1.00 m x 0.90 m
Balkon: ca. 3.30 m x 2.10 m
Berging woning: ca. 1.40 m x 2.36 m

Kenmerken

Overdracht

Prijs
€ 1.171 p.m. ex.
Servicekosten
€ 40
Status
Onder optie
Oplevering
01-12-2025
Adres
Vlamenburg 20 B
Postcode
2591 AS
Plaats
Den Haag

Bouw

Soort appartement
Bovenwoning, Appartement
Woonlaag
8
Soort bouw
Bestaande bouw
Bouwjaar
2020
Onderhoud binnen
Uitstekend
Onderhoud buiten
Uitstekend

Oppervlakten en inhoud

Woonoppervlakte
ca. 58m²
Inhoud
ca. 145m³

Indeling

Aantal kamers
2
Aantal slaapkamers
1
Aantal badkamers
1
Aantal verdiepingen
1
Voorzieningen
Glasvezel kabel, Lift, Mechanische ventilatie, Natuurlijke ventilatie, Schuifpui, Zonnepanelen

Energie

Energielabel
A+
Warm water
Elektrische boiler eigendom
Verwarming
Vloerverwarming geheel, Warmte Terugwininstallatie, Warmtepomp

Buitenruimte

Ligging
In woonwijk
Balkon
Ja
Schuur
Box

Garage

Soort garage
Parkeerkelder

Locatie

[ { "address": "Vlamenburg 20", "zipCode": "2591 AS", "city": "Den Haag", "lat": 52.091333, "lng": 4.3590116, "heading": 0, "pitch": 0 } ]

Interesse?

Heeft u interesse in deze woning? Vul het onderstaande formulier in en wij nemen z.s.m contact met u op.

Uw bericht is naar ons verzonden. Wij nemen zo snel mogelijk contact met u op.

Er is iets mis gegaan met het versturen van het formulier.
Controleer of u alle velden (goed) heeft ingevoerd en probeer het nog een keer.

recaptcha
reCAPTCHA
PrivacyTerms
telefoon

Liever telefonish contact?

U kunt ons van maandag t/m donderdag van 08:30 tot 17:30 en op vrijdag van 08:30 tot 17:00 uur bereiken op

070 - 352 42 01

Volg ons op facebook

facebook