Loosduinsekade 372, Den Haag

Rustenburg en Oostbroek

Interesse in deze woning?

Neem contact op voor het maken van een afspraak. Bel 070-3524201 of mail naar makelaars@devilee.nl

Contact opnemen
type
Woningtype
Benedenwoning
type
Oppervlakte
59m²
type
Perceel
n.v.t
type
Aantal kamers
3
type
Prijs
€ 305.000 k.k.

Omschrijving

Moderne. keurige en energiezuinige 3-kamer parterrewoning met luxe keuken voorzien inbouwapparatuur, luxe badkamer met ligbad, grotendeels laminaatvloeren en zonnige achtertuin Zuid Oosten. Energielabel B. Vrij uitzicht over de kade.

Centraal gelegen nabij het ruime winkelaanbod van de Apeldoornselaan, Monnikkendamplein en openbaar vervoer.

Laat u inspireren door de eerste foto (Artist Impresion). Met relatief weinig aanpassing is hier iets heel sfeervols te creëren.



Indeling:
Entree
Hal met meterkast
Woonkamer aan de voorzijde
Slaapkamer (achterzijde) met openslaande deuren naar achtertuin
Voorzijkamer
Keurig modern toilet
Badkamer met ligbad, aparte douche, vaste wastafel en handdoekenradiator
Keuken v.v. kunststof aanrecht met onder- en bovenkasten, alsmede een inbouw koel/vries combinatie, vaatwasmachine, kookplaat en afzuigkap
Aparte betegelde ruimte met wasmachine aansluiting
Zonnige achtertuin op het Zuid Oosten

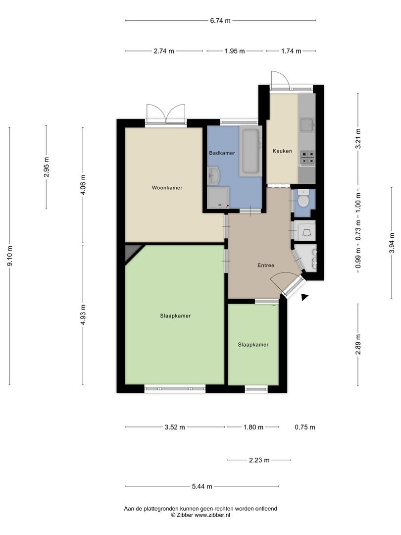
Voor de afmetingen van de diverse ruimtes verwijzen wij u naar de bijgevoegde plattegronden.

Bijzonderheden:
- Gelegen op eeuwigdurend afgekochte erfpachtgrond.
- Energielabel B
- Kunststof kozijnen met dubbel glas aan de voor-en achterzijde
- Gebruiksoppervlakte wonen 59 m2
- Verwarming en warmwater d.m.v. Cv ketel
- 1/3e aandeel in de gemeenschap van de Vereniging van Eigenaren in recent opgerichte VvE.
- Maandelijkse bijdrage € 145,-
- Meetcertificaat Zibber aanwezig.
- In koopovereenkomst worden preventief algemene milieu-, materialen- en exoneratieclausules opgenomen.
- Tevens zal worden opgenomen dat de eigenaar de woning niet zelf heeft bewoond (woning komt uit de verhuur).
- Oplevering per direct.

Interesse in dit huis? Schakel direct uw eigen NVM-aankoopmakelaar in.
Uw NVM-aankoopmakelaar komt op voor uw belang en bespaart u tijd, geld en zorgen.

Adressen van collega NVM-aankoopmakelaars in Haaglanden vindt u op Funda.

Deze informatie is door ons met de nodige zorgvuldigheid samengesteld. Onzerzijds wordt echter geen enkele aansprakelijkheid aanvaard voor enige onvolledigheid, onjuistheid of anderszins, dan wel de gevolgen daarvan

Kenmerken

Overdracht

Prijs
€ 305.000 k.k.
Status
Verkocht onder voorbehoud
Oplevering
Per direct
Adres
Loosduinsekade 372
Postcode
2571 CG
Plaats
Den Haag

Bouw

Soort appartement
Benedenwoning, Appartement
Woonlaag
3
Soort bouw
Bestaande bouw
Bouwjaar
1926
Onderhoud binnen
Uitstekend
Onderhoud buiten
Goed

Oppervlakten en inhoud

Woonoppervlakte
ca. 59m²
Inhoud
ca. 195m³

Indeling

Aantal kamers
3
Aantal slaapkamers
2
Aantal badkamers
1
Aantal verdiepingen
1

Energie

Energielabel
B

Buitenruimte

Tuin
Achtertuin
Achtertuin
Zuidoost, 58m², 705×821cm
Schuur
Vrijstaand hout

Garage

Locatie

[ { "address": "Loosduinsekade 372", "zipCode": "2571 CG", "city": "Den Haag", "lat": 52.0681778, "lng": 4.2758341, "heading": 0, "pitch": 0 } ]

Interesse?

Heeft u interesse in deze woning? Vul het onderstaande formulier in en wij nemen z.s.m contact met u op.

Uw bericht is naar ons verzonden. Wij nemen zo snel mogelijk contact met u op.

Er is iets mis gegaan met het versturen van het formulier.
Controleer of u alle velden (goed) heeft ingevoerd en probeer het nog een keer.

recaptcha
reCAPTCHA
PrivacyTerms
telefoon

Liever telefonish contact?

U kunt ons van maandag t/m donderdag van 08:30 tot 17:30 en op vrijdag van 08:30 tot 17:00 uur bereiken op

070 - 352 42 01

Volg ons op facebook

facebook