Kotterstraat 98, Den Haag

Scheveningen

Interesse in deze woning?

Neem contact op voor het maken van een afspraak. Bel 070-3524201 of mail naar makelaars@devilee.nl

Contact opnemen
type
Woningtype
Bovenwoning
type
Oppervlakte
53m²
type
Perceel
n.v.t
type
Aantal kamers
3
type
Prijs
€ 325.000 k.k.

Omschrijving

Gelegen in het gezellige Oud-Scheveningen, in de rustige Kotterstraat, bevindt zich deze karakteristieke 3-kamer dubbele bovenwoning. De locatie biedt het beste van beide werelden: op loop- of fietsafstand de levendigheid van Scheveningen en Den Haag, maar tegelijkertijd rust en veel voorzieningen in de directe omgeving. Supermarkten, leuke cafés, strand en boulevard zijn nabij. Uitvalswegen en openbaar vervoer zijn gemakkelijk bereikbaar.




Indeling:
Entree op straat niveau
Gang met meterkast
Trap naar 1e verdieping
Royale woonkamer met nette, witte, hoekopgestelde open keuken
Toilet en wastafel

Trap naar 2e verdieping:
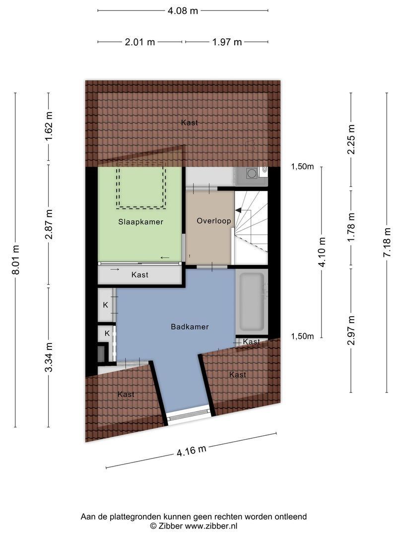
Overloop met ruime bergkast
Voorkamer met douche in ligbad en kleine dakkapel
Achter(slaap-)kamer met dakraam.

Bergzolder over de volle lengte van de woning met opstelplaats wasmachine en droger.

Voor de afmetingen van de diverse ruimtes verwijzen wij u naar de bijgevoegde plattegrond.

Bijzonderheden:
Eigen grond.
Gaskachel verwarming
53m2 woonoppervlakte. Door de schuine daken op de 2e verdieping zijn er meer m2 beschikbaar dan het woonoppervlak doet vermoeden.
Kunststof kozijnen met dubbelglas aan de voor-en achterzijde.
Energielabel G
6/36e aandeel in de gemeenschap. VvE niet actief. Vraag naar de mogelijkheden bij uw hypotheekadviseur.
Meetcertificaat Zibber aanwezig.
In koopovereenkomst worden preventief algemene milieu-, materialen- en exoneratieclausules opgenomen.
Oplevering per direct.

Interesse in dit huis? Schakel direct uw eigen NVM-aankoopmakelaar in.
Uw NVM-aankoopmakelaar komt op voor uw belang en bespaart u tijd, geld en zorgen.

Adressen van collega NVM-aankoopmakelaars in Haaglanden vindt u op Funda.

Kenmerken

Overdracht

Prijs
€ 325.000 k.k.
Status
Beschikbaar
Oplevering
In overleg
Adres
Kotterstraat 98
Postcode
2584 VD
Plaats
Den Haag

Bouw

Soort appartement
Bovenwoning, Appartement
Woonlaag
2
Soort bouw
Bestaande bouw
Bouwjaar
1906
Onderhoud binnen
Goed
Onderhoud buiten
Redelijk

Oppervlakten en inhoud

Woonoppervlakte
ca. 53m²
Inhoud
ca. 196m³

Indeling

Aantal kamers
3
Aantal slaapkamers
2
Aantal verdiepingen
2
Voorzieningen
TV-Kabel

Energie

Energielabel
G
Warm water
C.V.-ketel
Verwarming
C.V.-ketel
Ketel
(Combi-ketel, Eigendom)

Buitenruimte

Ligging
Beschutte ligging, In woonwijk

Garage

Locatie

[ { "address": "Kotterstraat 98", "zipCode": "2584 VD", "city": "Den Haag", "lat": 52.1029412, "lng": 4.2750336, "heading": 0, "pitch": 0 } ]

Interesse?

Heeft u interesse in deze woning? Vul het onderstaande formulier in en wij nemen z.s.m contact met u op.

Uw bericht is naar ons verzonden. Wij nemen zo snel mogelijk contact met u op.

Er is iets mis gegaan met het versturen van het formulier.
Controleer of u alle velden (goed) heeft ingevoerd en probeer het nog een keer.

recaptcha
reCAPTCHA
PrivacyTerms
telefoon

Liever telefonish contact?

U kunt ons van maandag t/m donderdag van 08:30 tot 17:30 en op vrijdag van 08:30 tot 17:00 uur bereiken op

070 - 352 42 01

Volg ons op facebook

facebook