Jurriaan Kokstraat 199, Den Haag

Scheveningen

Interesse in deze woning?

Neem contact op voor het maken van een afspraak. Bel 070-3524201 of mail naar makelaars@devilee.nl

Contact opnemen
type
Woningtype
Tussenverdieping
type
Oppervlakte
56m²
type
Perceel
n.v.t
type
Aantal kamers
3
type
Prijs
€ 325.000 k.k.

Omschrijving

Instapklaar 3-kamer appartement. Perfect voor starters, stellen of iedereen die op zoek is naar een fijne woonplek. Energielabel B. Luxe open keuken met spoel/kook eiland, eetbar en diverse inbouwapparatuur. Luxe badkamer.

De omgeving biedt de winkels, supermarkten en restaurants van de Keizerstraat, Openbaar vervoer stopt letterlijk voor de deur. Binnen enkele minuten ben je op het strand en de boulevard.



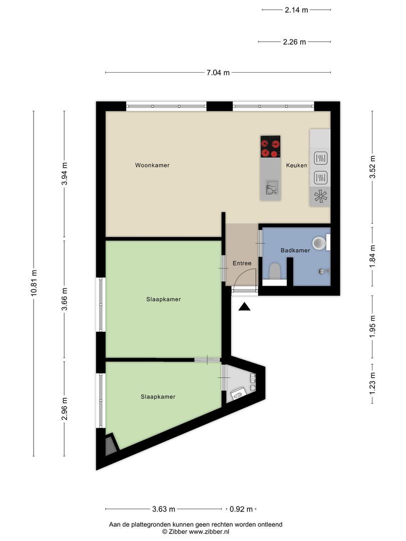
Indeling:

Gemeenschappelijke entree op straatniveau
Trappenhuis naar 2e verdieping
Entree appartement
Ruime woon/eetkamer met grote raampartijen zorgt voor een prettige lichtinval en een open, uitnodigende sfeer.
Prachtige open keuken met spoel/kook eiland en eetbar. Voorzien van koelkast, vriezer, oven, vaatwasmachine, coffee maker, in plafond geïntegreerde afzuigkap en inductie kookplaat
Mooi formaat achter(slaap-)kamer met doorloop naar achtergelegen 2e kamer
Mooie badkamer voorzien van inloopdouche, wastafelmeubel, inbouwcloset,

Bijzonderheden:
- Gelegen op obligatoir heruitgegeven erfpachtgrond. Erfpachtcanon € € 53,64 + € 32,- beheerkosten per jaar
- Energielabel B.
- Voorzijde en achterzijde voorzien van dubbel glas
- Gebruiksoppervlakte wonen 56 m2
- 2/72e aandeel in de actieve Vereniging van Eigenaars Keizerstraat 356-360 /Jurriaan Kokstraat 197-203 te 's-Gravenhage
- Maandelijkse VvE bijdrage € 90,-
- Nieuwe bestuurder Totaal VvE Beheer
- Meetcertificaat Zibber aanwezig
- In koopovereenkomst worden preventief algemene milieu-, materialen- en exoneratieclausules opgenomen
- Tevens zal worden opgenomen dat de eigenaar de woning niet zelf heeft bewoond (woning komt uit de verhuur)
- Oplevering per direct.

Interesse in dit huis? Schakel direct uw eigen NVM-aankoopmakelaar in.
Uw NVM-aankoopmakelaar komt op voor uw belang en bespaart u tijd, geld en zorgen.

Adressen van collega NVM-aankoopmakelaars in Haaglanden vindt u op Funda.

Deze informatie is door ons met de nodige zorgvuldigheid samengesteld. Onzerzijds wordt echter geen enkele aansprakelijkheid aanvaard voor enige onvolledigheid, onjuistheid of anderszins, dan wel de gevolgen daarvan

Kenmerken

Overdracht

Prijs
€ 325.000 k.k.
Status
Beschikbaar
Oplevering
Per direct
Adres
Jurriaan Kokstraat 199
Postcode
2586 SH
Plaats
Den Haag

Bouw

Soort appartement
Tussenverdieping, Appartement
Woonlaag
2
Soort bouw
Bestaande bouw
Bouwjaar
1925
Onderhoud binnen
Uitstekend
Onderhoud buiten
Goed
Bijzonderheden
Beschermd stads- of dorpgezicht

Oppervlakten en inhoud

Woonoppervlakte
ca. 56m²
Inhoud
ca. 185m³

Indeling

Aantal kamers
3
Aantal slaapkamers
2
Aantal badkamers
1
Aantal verdiepingen
1
Voorzieningen
Mechanische ventilatie, TV-Kabel

Energie

Energielabel
B
Isolatie
Dubbel glas, Muurisolatie
Warm water
C.V.-ketel
Verwarming
C.V.-ketel
Ketel
Intergas HR (2021, Combi-ketel, Eigendom)

Buitenruimte

Ligging
Aan drukke weg

Garage

Locatie

[ { "address": "Jurriaan Kokstraat 199", "zipCode": "2586 SH", "city": "Den Haag", "lat": 52.1039866, "lng": 4.2766777, "heading": 0, "pitch": 0 } ]

Interesse?

Heeft u interesse in deze woning? Vul het onderstaande formulier in en wij nemen z.s.m contact met u op.

Uw bericht is naar ons verzonden. Wij nemen zo snel mogelijk contact met u op.

Er is iets mis gegaan met het versturen van het formulier.
Controleer of u alle velden (goed) heeft ingevoerd en probeer het nog een keer.

recaptcha
reCAPTCHA
PrivacyTerms
telefoon

Liever telefonish contact?

U kunt ons van maandag t/m donderdag van 08:30 tot 17:30 en op vrijdag van 08:30 tot 17:00 uur bereiken op

070 - 352 42 01

Volg ons op facebook

facebook