Willem Hooftstraat 1, Delft

Kuyperwijk-Zuid

Interesse in deze woning?

Neem contact op voor het maken van een afspraak. Bel 070-3524201 of mail naar makelaars@devilee.nl

Contact opnemen
type
Woningtype
Maisonnette
type
Oppervlakte
70m²
type
Perceel
n.v.t
type
Aantal kamers
4
type
Prijs
€ 335.000 k.k.

Omschrijving

Aan de Willem Hooftstraat 1 in Delft bevindt zich deze goed onderhouden 4-kamer maisonnettewoning, ideaal voor wie comfortabel en centraal wil wonen. De woning verkeert in goede staat van onderhoud en biedt een prettige combinatie van ruimte, licht en functionaliteit.

De maisonnette beschikt over een fijne woonverdieping met een lichte woonkamer waar de ramen (gericht op de gemeenschappelijke binnentuin) zorgen voor een aangename sfeer. De open keuken is praktisch ingedeeld en biedt voldoende werk- en opbergruimte. Verdeeld over de verdiepingen zijn er drie volwaardige slaapkamers, waardoor de woning zeer geschikt is voor gezinnen, stellen of thuiswerkers.

De nette badkamer en het separate toilet maken het geheel compleet. Dankzij de slimme indeling voelt de woning ruim aan en is iedere vierkante meter optimaal benut.

De ligging is een groot pluspunt: rustig wonen, maar met het centrum van Delft, openbaar vervoer, scholen, winkels en uitvalswegen op korte afstand. Een ideale locatie voor wie de charme van Delft wil combineren met dagelijks gemak.



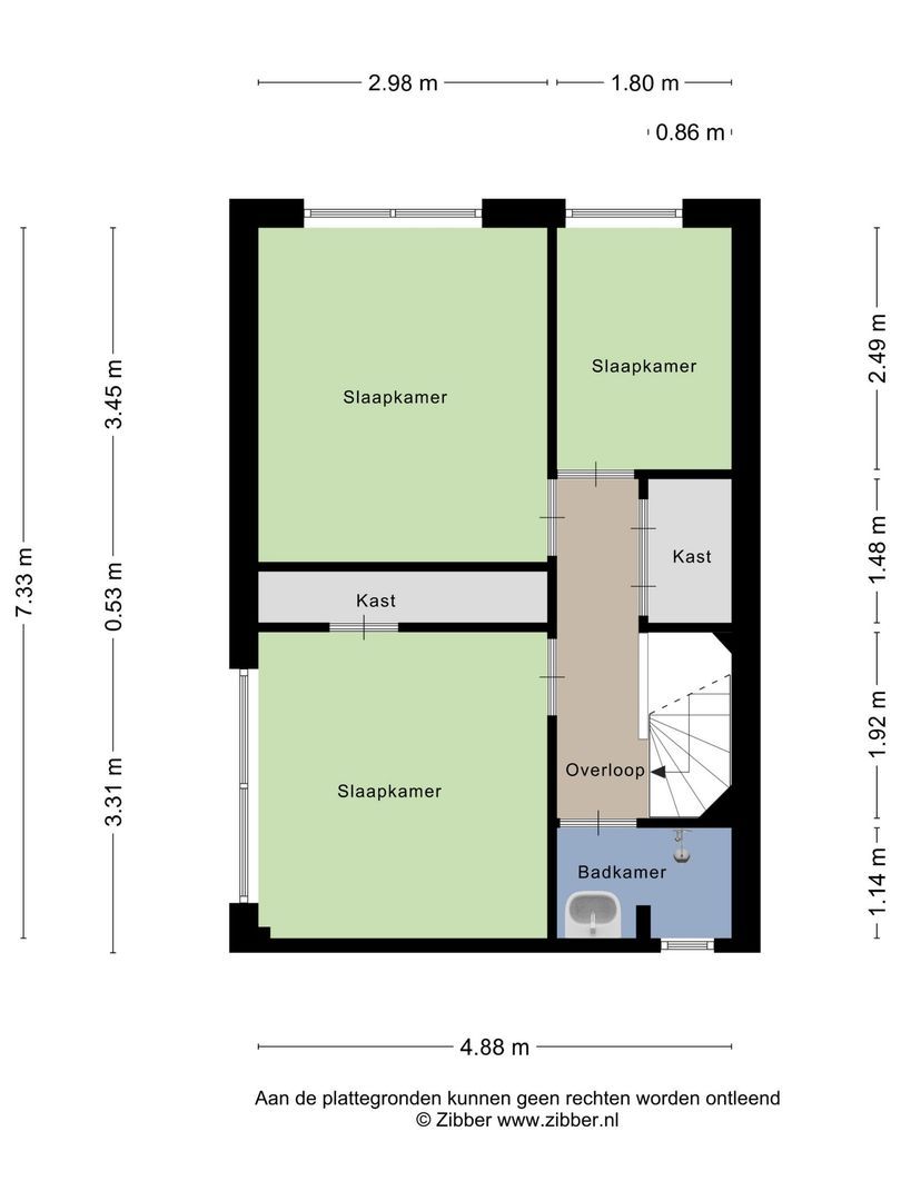
Indeling:
Entree middels verhoogde entree op de begane grond.
Gang met toegang tot het toilet en bergkast onder trap
Woonkamer met aansluitend balkon (Zuidoost) en nette open keuken met onder- en bovenkasten

Trap in gang naar 2e verdieping met toegang tot overloop met vaste kasten.
3 slaapkamers gelegen aan de voorzijde, achterzijde en achter-zij-kamer.
Badkamer met betegelede inloopdouche, vaste wastafel en handdoekenradiator.

Voor de diverse afmetingen van de ruimtes verwijzen wij u naar de bijgevoegde plattegronden.

De ruime berging van ca. 10m2 ligt in de kelder van het complex.

Bijzonderheden:
Eigen grond.
VvE Willem Hooftstraat 1 t/m 29-I te Delft recentelijk geactiveerd.
1/23e aandeel.
VvE ingeschreven in de KvK
Maandelijkse bijdrage € 82,-
Collectieve opstal-, aansprakelijkheid- en rechtsbijstandverzekering. Bestuur in eigen beheer.
Rondom kunststof kozijnen met dubbel glas.
Nieuwe centrale verwarming met zuinige Intergas Extreme CV-ketel (2024).
Energielabel E
In koopovereenkomst worden preventief algemene milieu-, materialen- en exoneratieclausules opgenomen
Oplevering in overleg

Interesse in dit huis? Schakel direct uw eigen NVM-aankoopmakelaar in.
Uw NVM-aankoopmakelaar komt op voor uw belang en bespaart u tijd, geld en zorgen.

Adressen van collega NVM-aankoopmakelaars in Haaglanden vindt u op Funda.

Kenmerken

Overdracht

Prijs
€ 335.000 k.k.
Status
Beschikbaar
Oplevering
In overleg
Adres
Willem Hooftstraat 1
Postcode
2614 EV
Plaats
Delft

Bouw

Soort appartement
Maisonnette, Appartement
Woonlaag
1
Soort bouw
Bestaande bouw
Bouwjaar
1957
Onderhoud binnen
Goed
Onderhoud buiten
Goed

Oppervlakten en inhoud

Woonoppervlakte
ca. 70m²
Inhoud
ca. 185m³

Indeling

Aantal kamers
4
Aantal slaapkamers
3
Aantal badkamers
1
Aantal verdiepingen
2
Voorzieningen
TV-Kabel

Energie

Energielabel
E
Warm water
C.V.-ketel
Verwarming
C.V.-ketel
Ketel
Intergas Extreme (2024, Combi-ketel, Eigendom)

Buitenruimte

Ligging
In woonwijk
Balkon
Ja
Schuur
Inpandig
Faciliteiten schuur
Voorzien van elektra

Garage

Locatie

[ { "address": "Willem Hooftstraat 1", "zipCode": "2614 EV", "city": "Delft", "lat": 52.010505, "lng": 4.3386946, "heading": 0, "pitch": 0 } ]

Interesse?

Heeft u interesse in deze woning? Vul het onderstaande formulier in en wij nemen z.s.m contact met u op.

Uw bericht is naar ons verzonden. Wij nemen zo snel mogelijk contact met u op.

Er is iets mis gegaan met het versturen van het formulier.
Controleer of u alle velden (goed) heeft ingevoerd en probeer het nog een keer.

recaptcha
reCAPTCHA
PrivacyTerms
telefoon

Liever telefonish contact?

U kunt ons van maandag t/m donderdag van 08:30 tot 17:30 en op vrijdag van 08:30 tot 17:00 uur bereiken op

070 - 352 42 01

Volg ons op facebook

facebook